Proyectos
Hacemos
Noticias
Kit
Equipo
Contacto
Seleccionar página
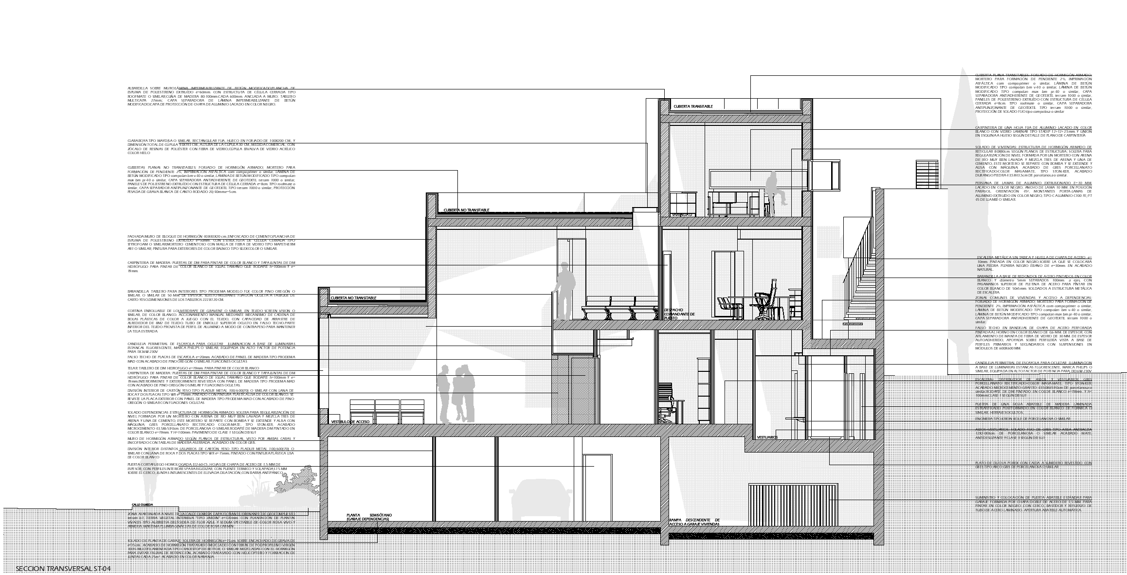
Alcalá del Júcar
Proyecto
Habilidades
Publicado el
31 julio, 2022
←
Úbeda
Cercedilla
→
Entradas recientes
ARTICULO EN REVISTA DE HISTORIA Y TEORÍA DE LA ARQUITECTURA 10-11. AUTOR: ARQUITECTO DANIEL PINZON AYALA
ARTICULO EN REVISTA N_23 (OCTUBRE DE 2022) «CUADERNO DE NOTAS» DE LA ETSAM. AUTOR: ARQUITECTO DANIEL PINZÓN AYALA
Publicación El Mundo. Estar donde estés 23/10/2018
Best of Houzz 2018 – Servicio
Best of Houzz 2017 – Servicio
Archivos
diciembre 2023
abril 2019
marzo 2019
diciembre 2017
Categorías
CASA DIEZ
COSAS DE CASA
CUADERNO DE NOTAS
El Mundo digital
Houzz 2017
Houzz 2018
MICASA
REVISTA DE HISTORIA Y TEORIA DE LA ARQUITECTURA
REVISTA DETAIL